

上海康桥e·one中央工园
独栋办公,生态园区
项目位于浦东康桥核心区——康桥东路111号,坐拥11号线、16号线双轨交便利,毗邻罗山路地铁站,自驾便捷。
【产品信息】
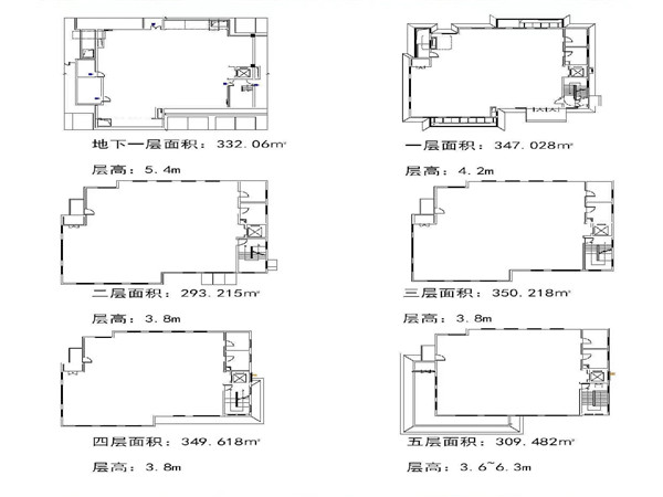
租赁选择:分层租赁320㎡起,整栋租赁1500-4300㎡
交付标准:毛坯、精装可选,部分专享花园
层高优势:首层4.2米,标准层3.6-3.8米,顶层最高6.3米
配套设施:每栋配备天然气,停车位充足
【园区配套】
品牌食堂、网红咖啡店、便利店
喷泉中央广场,环境优美
电竞俱乐部等多元企业生态
独栋办公,环境优越,是您企业总部的理想之选。
















